dekalb commons

A Delicate Balance: Weighing Embodied vs. Operational Carbon, Part Two

By Sara A. Bayer and Carmel Pratt

In this all-hands-on-deck moment for the climate, construction industry professionals have an incredible opportunity to significantly reduce their work’s immediate carbon impact at little to no cost, with tools and strategies available to them today, and without disrupting much of their process. What achieving these levels of reduction does require is critically assessing both the embodied carbon (EC) and operational carbon (OC) of a project. An optimized minimum of a project’s total carbon emissions can only be met by evaluating concurrently EC’s and OC’s relative contributions and the strategies to reduce them, rather than solving for one at the expense of the other.

In the first part of our two-part article, we covered the background context of the science of EC in construction and the tools used in its calculations. In this part, we discuss how Magnusson Architecture and Planning and Bright Power worked together to achieve this optimized minimum in a case study project.

Dekalb Commons

Dekalb Commons is an 85-unit affordable housing development comprising twin, mid-rise buildings set across from one another on Dekalb Avenue in the Bedford Stuyvesant neighborhood of Brooklyn, New York. Dekalb Commons, which will open its doors in 2024, is set to achieve Passive House (Phius) certification. Its program goals included incorporating the most replicable, attractive, and effective strategies for near net-zero operational energy, on-site energy generation, EC reduction across material sectors, decarbonization and full electrification, actionable management tools, healthy living, and resiliency. Dekalb Commons is a 2020 New York State Energy Research and Development Authority (NYSERDA) Building of Excellence Award winner and was also honored by the agency with a Blue Ribbon for Design Excellence award.

The Delicate Balance

From the beginning, one of the project’s priorities was to achieve a low energy use intensity (EUI) and reduce OC, as that is essential to realizing a host of long-term benefits for the residents, owner, and larger society. Passive House (PH) design principles are proven methods to achieve reductions in OC and low site (and source) EUIs, while balancing comfort and resiliency levels.

The Dekalb Commons project team decided to pursue certification through PHIUS and use the WUFI Passive energy modeling software as a tool to analyze and balance OC throughout the design process. Phius was chosen, because we believe its nuanced space-conditioning targets, based on cost, offer a good foundation to address EC as well. Using BEopt software from the U.S. Department of Energy, Phius created climate-specific and cost-compressed building performance targets, taking into account the points in the BEopt-generated models at which diminishing returns occur with further material investment. EC considerations may also translate to capital cost savings, when schematic design and design development decisions result in less material use overall and, therefore, cost savings to a project.

Schematic Design

Many very early design choices can dramatically affect a project’s EC impact. In urban affordable housing, the goals informing a project’s design often include maximizing the number of apartment units on a given site. This goal in itself is an EC optimization strategy, as large systems can serve more people with a diminishing investment per capita. Additionally, this typically means creating a building with an optimal form factor, or surface-to-volume ratio. Getting more interior volume with less exterior enclosure is ideal from both an operational and EC perspective. Operationally, the building can benefit from the ability to retain internal heat gain, and less insulation is needed. A good form factor also typically goes hand-in-hand with the minimization of cantilevers, offsets in the transfer of forces that necessitate large structural members, and other gymnastics that add cost and EC that may not be essential to creating a beautiful and desirable place to live and thrive.

A multistory project in a dense urban environment facilitates residents’ ability to lead low-carbon lives by providing easy access to transportation and other resources. Researchers have posited, however, that extremely tall high rises are not ideal from an EC perspective, and that, as with increasing insulation, there is a point at which there are diminishing returns to building height. Tall high rises have a high slenderness ratio and far from ideal form factors. Furthermore, more systems and redundancy are needed for life safety and structure, thus requiring more EC investment per capita.

Design Development

The structural system is most likely loosely defined in the schematic phase but is certainly solidified by design development. This project deploys a structural system that is readily available, commonly used in affordable housing in NYC, and cost effective for our typology: concrete-masonry unit (CMU) bearing walls and precast hollow core plank floors. While future projects might include entirely different structural systems, we think it is critical to demonstrate today that reductions are possible on every type of project, even those with a business-as-usual structure. Many of the materials concepts we use now will likely be needed in our zero carbon (near) future; therefore, we need to invest in understanding how to make the lowest carbon versions of these typical construction approaches.

With regards to the idea that systemic change is needed to our business-as-usual structural systems, we acknowledge the idea that mass timber can potentially store carbon. We conclude at the moment, however, that our forestry practices and use of wood products in general does not yet support the idea that we should all use more wood. If we are able to source wood from entirely FSC-certified sources, and environmental product declarations (EPDs) from wood products were to reflect forestry management practices, we would then undertake such a system change for EC reasons (see "A Note on Mass Timber Considerations" below).

Another opportunity to address the balance of OC and EC during early design phases stems from planning the window openings. Windows are part of a biophilic strategy and play a central role in quality of life by providing daylight, connection with one’s surroundings, potential views to nature, and natural ventilation. We design windows that are as large as the operational energy model will allow, and also size and space them based on our chosen cladding’s standard measurements. This results in a cladding waste efficiency of 85% or better, meaning that very little of the cladding is cut or wasted during construction. Here is another example where EC strategies have cost reduction co-benefits.

We typically prefer rainscreen systems as they protect the enclosure control layers and make air barrier installation simpler. Open-jointed (back-vented) systems are ideal, as they require less sealant, which is a material that is tough to decarbonize cost effectively at this point. In recent years, testing has been done on a rain screen method dubbed the “screw through solution”, which essentially uses the rigidity of the insulation to provide part of the stability of the substructure. No girts or clips are required, and, instead, there’s only an unremarkable shallow hat channel and long screws. When we shifted to this design at Dekalb, we saved about $5/ft2 in material costs and also of course, EC. This system, which is virtually thermal bridge free relies on the cladding material being less than 10 lbs/ft2, which does not truly limit design choices.

Construction Documents

An entire building's climate impact can be modeled in a whole building life cycle assessment, in order to evaluate EC reduction options and more, but this is often a costly endeavor for design teams. To help move EC solutions forward, we can learn from pioneers who have used these models to establish the typical hot spots for EC, and we can focus on optimizing those components, and perhaps forego having every firm model their buildings.

For each hot spot—such as the structural and envelope components and interior finishes with large volumes or short life spans—we studied the immediate 10-year time frame of each material choice in terms of OC and EC impact. Thus, we could assess if our project was sacrificing the short-term goal of keeping us under 1.5°C of climate change for a longer-term balance. The buildings in this project are all electric and will eventually operate at net zero in keeping with New York State’s aim to have a 100% renewable grid by 2040. While saving on operational energy is key to actually achieving a reliable renewable grid, using too much EC in the short term to achieve small and longer-term OC benefits may not keep us from wreaking havoc with our climate.

Table 1 is a summary of each material category and how we first optimized them from an EC perspective by selecting certain specifications. (Each studied component and its respective test cases are described in greater detail in the sections that follow the table.) After optimization we tested the quantity of the material or other parameters to see if the EC investment we were making had a reasonable OC payback, again focusing on a 10-year time frame. While the numbers should not be taken literally—there is up to a 30% margin of error as covered in part 1 of this piece—they are helpful in understanding the order of magnitude. Note also that this table of optimized components represents the low-hanging fruit for EC, as the items included have very little or no cost implications.

The OC numbers are based on the difference in site energy (total kBtu) as calculated by WUFI Passive before and after changing the component studied, all else remaining equal. This is important to note, because the resultant difference does not adequately represent interrelated necessary changes, such as, for example, the mechanical system sizing and refrigerant amount effects of increasing the performance of the thermal envelope. Each measure was compared individually as noted in the Table 1 text below each component’s description in the first column. Most of our test cases are designed to examine the effect of changing a material with the goal of lowering EC and then analyzing whether the 10-year OC impact would be worth the reduction. Not all components were able to be tested for OC impact due to modeling constraints or due to no known OC impact. Note, these numbers are depicted in K kg (thousand kilograms) where EC numbers are based on “gate to gate” carbon analysis of a product and OC numbers are based on site EUI of the whole building and converted to source energy emission factor equivalencies.

table1

General Conditions & All Spec Sections

When developing contract documents and specifications for a project, an important first step is asking for transparency. Rapid development in the use of EPDs has helped bring transparency to product choices. LCA is an evolving science, and we can continue its growth and development by expressing interest. Simply requiring EPDs to be submitted with every product, if the manufacturer has them available, will send a strong signal to the market. Key to the success of this strategy is to follow through on the submittal process during construction.

Concrete

When it comes to EC, one can think of concrete as being synonymous with cement. As a single material component, concrete represents the biggest proportional emitter from construction, accounting for 8% of the total global carbon emissions from the building materials sector annually, making concrete/cement reduction a major impact potential area. There are many low and no-cost ways to reduce cement, making concrete reduction another great example of low-hanging carbon-reduction fruit.

Suppliers are willing to innovate. When it comes to a concrete design mix, the suppliers have particular expertise as to feasible and cost-neutral solutions to lower its GWP. By using the EC3 tool, we are able to view the GWPs of desired psi (pressure/strength) mixes available in our geographic area. With this information we can set achievable targets in our spec.

Connecting directly with a GC’s concrete supplier can be a pathway to additional reductions. Expressing a preference for lower GWP mixes often incentivizes change, especially if that change has a small upfront cost to the supplier but longer-term savings to them due to material swaps or increased market share. We have had success introducing ground glass as a cement replacement to a supplier, which is often a cost-neutral swap. (Perhaps not so ironically, Portland cement is not only the most carbon-intensive component of concrete but also the costliest.) Pozzitive is an exciting, ground glass product that uses reclaimed glass from curbside recycling. This urban-mined product can be sourced locally from any urban center. (If it isn’t collected locally, we urge you to contact your local authorities about capturing this waste stream, as recycled glass can be reclaimed in so many ways into low carbon construction and circular strategies!) It is critical to start the conversation with concrete suppliers early, as they will require the proper testing documentation of their new mixes for the building department, which takes time to prepare.

As part of our OC/EC balancing study, we tested the potential impact of increasing concrete thickness by 2 inches at below grade walls and slabs for thermal mass and found that this would not provide any significant OC reductions or thermal mass storage benefits for heating/cooling loads. The negative EC impact of increasing concrete thickness was almost 70-fold the minimal OC benefit, confirming that reducing concrete at every opportunity is, at the moment, almost always beneficial for holistic carbon reduction.

Concrete Masonry Unit (CMU)

Although CMU blocks are incredibly versatile, and are a locally manufactured product here in NYC, CMU walls have almost as much EC as concrete walls, as they contain precast CMU, grout, and rebar. We are grateful to KPFF, the structural engineer on the Dekalb Commons project, who worked with us to address this issue by nuancing what density of block was used on which floors. The resulting design uses lighter weight, lower GWP blocks at upper floors, lowering the EC impact of the project by 313 K kgCO2e. In this project’s case, the only local CMU manufacturer (in NYC) now makes its units with Pozzitive and CarbonCure concrete. Ask your supplier or manufacturer if it would be willing to do the same; the firm will likely see the revised product as a business opportunity.

Steel

Design choices for steel have a significant impact on EC as well. One way to reduce EC in steel by up to five times is by specifying 100% recycled beams from manufacturers using renewably powered electric-arc furnaces (EAFs) instead of virgin steel beams from a coal-fired basic oxygen furnace (BOF). Seventy percent of steel furnaces in the United States are EAF, whereas steel from China is almost always from a BOF and thus has at minimum three times the EC than steel from the United States. A steel plant in Colorado recently became the first to run almost entirely on solar power! As a further note, by avoiding hollow structural sections (HSS), design teams can limit the EC footprint of steel components, as these are often the most difficult shapes to confirm an origin for.

Steel does not lose its metallurgical properties when it is recycled, so there is absolutely no structural strength penalty associated with using recycled steel beams. Design teams may note that there are few furnaces in the Northeast that can make recycled content cold-rolled steel or studs. Thus, it may be difficult to find, but of course is worth asking for. Keep in mind that recyclable does not mean it contains recycled content; it means only that the material can be recycled (which of course means nothing for the immediate EC impact).

Drywall

Drywall is another example of a building material where there is lots of innovation in the market now, and if you do not see what you need for your project, ask the manufacturer! There are new products being released often, in response to EC concerns. Design professionals can specify target density of drywall (i.e., approximately 1.7 lbs./sq. ft. per ASTM C 1396) and the recycled content minimum (i.e., approximately 90% pre-consumer recycled content per ISO 14021) in their drywall specifications. Because this drywall weighs 20% less, there are savings in the A1-A3 production stages; manufacturers also indicate that they do not charge more for this specified lower density. This lighter-weight material will be appreciated by the builder as well.

Roofing Insulation

To keep the design within PH standard thresholds, our rule-of-thumb value for roof insulation has been about R-50. After testing using code minimum values, however, we found that the buildings we tend to design—generally cooling-dominated buildings due to form factor, density, and internal load—actually benefit from an optimized R-30 value; the OC reduction benefit of a higher R-value does not outweigh the EC reduction potential in this case. The reduced insulation had minimal impact on heating/cooling loads in the building, and the overall OC increase was not a huge order of magnitude compared with the immediate EC reduction benefits. The calculation here is that it would take almost 145 years to see the long-term carbon benefits of the proposed increase in insulation, which is much longer than typical lifespans of flat roofs. WUFI model results of each test run are shown in Figure 1 for comparison.

Because the thickness of an R-30 roof raises the height of a building, we selected a hybrid of mineral wool and polyiso insulation to keep the thickness to a minimum. Polyiso has a higher R-value per inch, but also a much greater rate of thermal expansion, compared to mineral wool. Therefore, we are using a layer of mineral wool above the polyiso to keep it a little warmer so it won’t expand or move. Design teams in colder climates may note that there are studies that show some polyiso does not perform well thermally at colder temperatures. When choosing insulation, rarely does a plastic insulation have a better EC than other choices. We often look to mineral wool as it does not contain bioaccumulative toxins, is not flammable, and is not made from a fossil fuel.

figure 1

Wall Insulation

PH cost optimization came into play once again when assessing wall insulation values. This material is where we found the most OC benefit per dollar and EC equivalency, because the above-grade walls constitute the largest surface area of the thermal envelope and are responsible for the majority of the losses in the envelope, making them the most important component to enhance. We did not need to maximize the possible insulation, and instead needed to balance our targets while still ensuring code requirements are met, at minimum. While it’s true that the EC impact of increasing insulation at the walls is significant, again, due to the surface area and quantity of material affected by this increase, the operational return on carbon investment for this decision would only be roughly 23 years—a timeframe in which we assume the wall insulation would not have to be otherwise replaced.

When comparing the code minimum of R-11.4 insulation to R-25 (6 inches of mineral wool), the latter had better performance and passed the critical heating load target. WUFI model results of each test run are shown in Figure 2. While it will take more than 20 years to see a carbon payback from that added insulation, meeting the PH targets will lead to a long, useful life for the building and smaller space conditioning loads, resulting in smaller mechanical equipment capacities, the effects of which were outside the scope of this test case study. While we were ultimately constrained by the limits of meeting strict PH targets on this project, this does pose an important question of where true optimization lies, and whether there are better middle grounds to compromise on based on further iterations comparing something in the median between minimum energy code and meeting PH targets.

figure 2

Sub-Slab Insulation

Insulation used below slabs is often the worst carbon-emitting type: XPS or another rigid foam. Plastic insulation is made from a host of processed chemicals, blowing agents, and petroleum, putting them high on the EC emissions scale. There are some manufacturers that claim to have optimized their processes to lower their EC, but none have a realistic path to completely decarbonize. Not all construction components have low emissions options yet, or feasible toxin-free decarbonization paths, so we eliminate plastic where feasible. Plastic in general has an enormous and growing EC (actually methane) footprint, as is clear from recent reports such as this one: https://www.beyondplastics.org/reports/the-new-coal-plastics-climate-change

The great news is that we finally have a much better option underneath our slabs: expanded glass aggregate gravel (FGA)! Unfortunately, this product is also sometimes called foam glass, but this foam does not mean HFCs as in foam plastic insulation. It’s made from 100% recycled glass (another use for urban mined glass!), and silicon carbide is used as an expanding agent. Some CO2 is produced as it heats up, but the majority is captured in the air pockets of the product.

This newer material serves two purposes: thermal insulation and drainage gravel. Its primary original use was in civil engineering applications, but it is used a lot under buildings in Europe, and there are many examples now in the United States as well. This is a product that we are hoping will one day replace the foam insulation and gravel layer in all sub-slab applications, once its novelty has worn off. This two-for-one application presents a great cost savings, along with a host of other benefits: 100% recycled material, very low GWP, light-weight, high frictional properties, non-flammable, chemically stable, non-leaching, low toxicity, and durable.

There are two new plants that recently opened in the Northeast: Aero Aggregates and Glavel. We are currently reviewing their applications for sub-slab depressurization systems (SSDS) systems with the Office of Environmental Remediation. We suggest that the stress on the FGA layer be limited to 2.5 ksf (2500 psf), to be conservative, because of potential permanent deformation, such as creep, or from dynamic loads at higher stress levels. Our floor slab loads will only get to about 500 psf.

This product provides immense value and is a huge EC opportunity with zero impact on OC. Beyond replacing two products, it provides similar performance and helps reduce cooling demand a small amount due to the material’s hourly thermal behavior. For Dekalb Commons, there were no space constraints on the slab, so we could use 7 inches of FGA without issue. The equivalent thermal performance of XPS would be 2 inches.

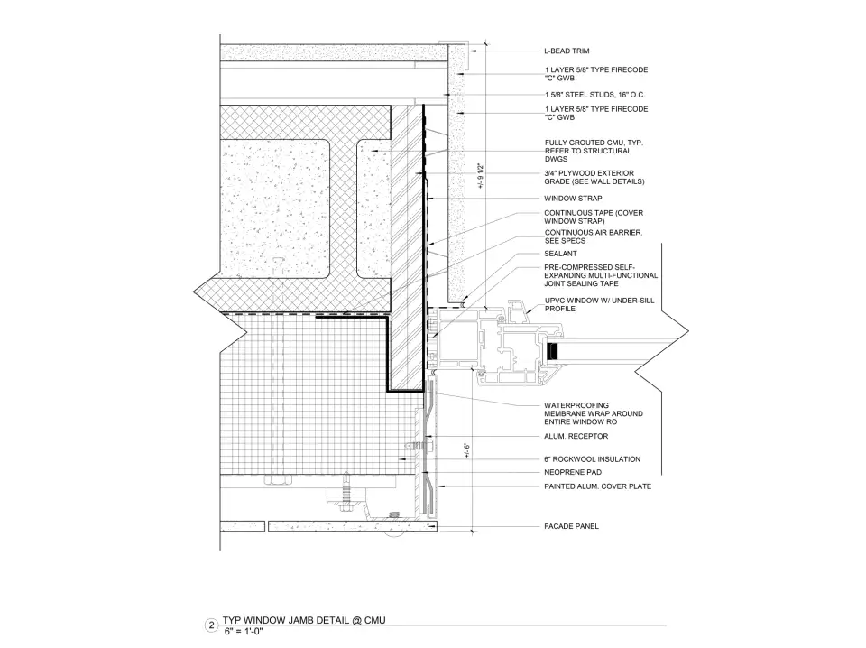
Windows

There is a hot debate over the use of double- or triple-pane windows in PH buildings. While it’s true that windows make up the weakest part of the thermal envelope and deserve extra attention for specifying and detailing their glazing values and installations, considerations of cost and material resourcing must be balanced with the performance concerns. We selected double-pane windows with coatings on the Dekalb Commons project to save EC through the avoidance of the extra glass pane. As mentioned, this building typology creates a cooling-dominated design where meeting PH cooling targets becomes more challenging, requiring lower SHGC glazing values, while allowing for less aggressive U-values. We balanced the double-pane windows with coatings to strike the right balance between U-value, SHGC value, and cost; it’s important to note that many coatings are not recyclable, but recycling facilities are increasingly accepting this glass as well.

We decided not to specify aggressively low U-values in order to expand the set of manufacturers who could meet our requirements for the sake of cost competitiveness, instead of being constrained to one manufacturer. We would really like to see more manufacturers develop windows that would meet similar criteria for balanced U-values with lower SHGC values to better support these critical affordable housing building typologies that have high cooling demands.

We also avoided the use of additional materials for physical shading (like extended reveals and shading fins) except at storefront facades and internal window blinds, which do make a significant difference. We studied window mounting locations and space-conditioning load effects to balance the reveal depth for shading benefits. We weighed the cooling demand with the desire to avoid adding more material (aluminum) and thus increasing the EC weight. After comparing THERM models and WUFI iterations with the various mounting locations, it was evident that a mid-mount window aligned with the insulation at the exterior was the best balanced compromise to maximize shading without compromising thermal bridges, condensation risk, and thermal comfort (see Figure 3).

A20 Dekalb   North wall detail

Domestic Hot Water Distribution

There’s a reason why “reduce” is always the first tactic where efficiency and sustainability are concerned. One area that saw multiple co-benefits in reducing material use and EC was in the distribution of hot water, even given that the domestic hot water (DHW) system was already aggressively efficient thanks to the use of heat pump water heaters for DHW supply. Compact recirculation loops and riser layouts were designed to meet PH hot water delivery tests and to reduce the volume of stored water. This strategy also helped balance internal heat gains in these cooling-dominated buildings. In addition to lowering EC by reducing material use, compact DHW delivery promotes tenant satisfaction by cutting down on time wasted waiting for water to heat at the tap.

To further address the cooling load challenge in these designs, we increased the domestic hot water riser insulation from one inch to three inches. While this increased the materials and therefore the EC emissions, it is minor in comparison to other energy efficiency measures and is crucial in helping to meet cooling demand (which was lowered by about 2%), while simultaneously lowering OC. Although not studied for EC impact and thus not included in the 10-year comparison, we wanted to include this important component to consider when designing DHW systems.

Refrigerants

Refrigerant management is the number one carbon drawdown opportunity. Refrigerants have the highest reduction impact potential for the lowest cost to draw down and manage.

It’s important to frame the GWP of refrigerants over a specific timeline (ideally the typical lifetime of the refrigerant itself). Many refrigerants have a lifetime of roughly 20 years (range from 1-50 years), but their GWP impacts are estimated over a 100-year timeline. This approach is problematic because refrigerants can emit anywhere between 2-4 times as much carbon/GWP in their realistic 20-year lifetimes as estimated over the irrelevant 100-year timeline. This more time-sensitive emission issue is primarily due to leaks that can come from both initial charging and recharging (adding refrigerants), defective equipment, installation, repairs, corrosion, damage, and improper disposal, amongst other life-cycle occurrences. This issue highlights the importance of considering all the ramifications of electrification. At what point do the benefits of adding high GWP refrigerant-containing equipment outweigh the potential GWP risk? Can we continue to find lower GWP refrigerant options, such as CO2, to enable more beneficial and less risky electrification

We’re pleased to report that some low carbon and low GWP refrigerant options—CO2 heat pump water heaters, for example—are becoming more widely available. However, we need more sustainability and design professionals to express their need for these options and more manufacturers to push research and development in these technologies so that they become more cost effective.

In our project, we focused on the reduction of refrigerant emissions through the reduction in refrigerant distribution (piping), as this is the area where leaks most often occur (see Figure 4). Residential and light commercial systems leak up to 15%, and this rate increases for complicated split systems and heat recovery. All connections do not leak equally; there is a higher prevalence of leakage in compression fittings versus flare fittings. By limiting the length of refrigerant piping, you can limit connections and leaks, where 96% of total refrigerant is typically lost through field-assembled joints. In your specs/bid language, consider requiring EPA regulation 608 and 40 CFR 82.157 (inspecting for leaks, and repairing when there are leaks, maintaining records). Find an HVAC contractor with credentials for HVAC quality installation, which is an ENERGY STAR certification program requirement. Avoid the use of non-necessary heat recovery designs that add more refrigerant runs for miniscule energy savings to reduce materials and save costs.

figure 4

Beyond design and throughout the building's operational life, ongoing refrigerant maintenance is just as important as compact design. Best practice approaches to leak detection and monitoring and regular maintenance that includes charge tests and fittings checks are crucial to avoiding irrevocable emissions caused by these hard-to-detect leaks. Proper refrigerant management also ensures systems run as optimally and as close to their rated efficiency as possible, while preserving their long-term durability.

What’s next

The final result of EC savings is hard to quantify. Because a whole building EC model was not created, we used simple calculations of material quantities x GWP from EDPs of the hot spots identified in this study. (The EC3 tool is also a great way to log this data and can generate useful reporting documents.) The results show we can reasonably assume a 307 K kgCO2e, or 20%, reduction in EC compared to the same building with standard specifications. If we include refrigerant savings impacts, the savings are approximately 1,662 K kgCO2e. As an order of magnitude and at zero added cost, these are significant savings. If implemented across all new construction, such savings could greatly contribute to our immediate-term emissions reduction goals.

Regulations regarding EC are swiftly increasing, as a look at the Carbon Leadership Forum’s excellent resources on this topic will show, and so it is advisable for teams to acquire expertise in this area.

Certifications

While this project and study focused on a pair of buildings pursuing Phius and Enterprise Green Communities certifications, it’s important to mention other certification programs that have a heavy focus on embodied and operational carbon and provide helpful frameworks to achieving drawdown. The downside to many of these programs is that they still approach getting to zero by offsetting carbon, whereas reduction is the first and most important step.

The International Living Future Institute’s Zero Carbon certification is one great example of a program offering a helpful framework for reduction, and then getting to zero with carbon offsets. USGBC’s latest LEED certification version, v4.1, prioritizes a holistic approach to evaluating building products and materials for EC reduction by rewarding building reuse, encouraging whole-building life-cycle assessments and EPD disclosures, reporting and optimizing material ingredients, sourcing raw materials responsibly, and managing/reducing waste properly.

A new version of PHribbon is available for the United States through the Passive House Network (PHN) that includes an Embodied CO2 module for the PHPP, which directly integrates and utilizes information from the Building Transparency EC3 database (mentioned also in Part 1 of this article) along with the U.S. EPA’s CO2 figures for electricity and the end of life of materials to offer a balanced predictive model of both OC and EC. This is an excellent opportunity to get EC reduction conversations into the hands of PH practitioners without heavy lifting.

All of these advancements in policies and building certification programs point to a collective movement and acknowledgment that both EC and OC in our built environment must be addressed. The scale is now tipped toward the urgent short-term impacts in our building materials. Balancing EC and OC is crucial if we are going to get anywhere close to the required emissions drawdown needed to combat climate change.

A Note on Mass Timber Considerations

As a side note, we know that EC science is still young, and environmental product declarations (EPDs) sometimes reflect limited assumptions. Although we are interested in exploring mass timber structures, which NYC started allowing in 2022 for buildings of 7 stories or less, we have concerns about its perceived carbon benefits. There are important issues to be aware of with wood sourcing. As noted in part 1 of this piece, EPDs for wood products do not disclose forestry practices, which have an enormous effect on the carbon balance of tree harvesting. Without this information, claims regarding a wood product’s low EC cannot realistically be verified. There is also a limited supply of wood from well-managed forests. Only 11% of North American forests are FSC certified, which means that too many of our wood products come from clear-cut forests. Because most of the carbon in a forest is actually stored in the soil, clear cutting exposes that soil to runoff. The leaves and branches that fall to the forest floor are left to decompose, increasing carbon dioxide and methane emissions. Some studies claim that more carbon is stored in younger, swiftly growing trees, but this is certainly not a consensus. There is ample evidence that forest plantations today degrade soil quality over time and do not support the biodiversity that is one of the central pillars of a healthy ecosystem. It would be a grave error to destroy biodiversity in an effort to prevent more serious climate change. Deforestation is estimated at 10-20% of anthropogenic emissions, and less than 70% of household paper products are recycled. We don’t think that a healthy enough relationship with our forests exists as of yet to advocate for an enormous increase in wood usage.

It is our hope, and the hope of many others, that the best forestry practices become the norm, as demand increases for wood products as a way to store biogenic carbon. Biogenic carbon storage is certainly a key tool to reducing our carbon impact and possibly even making carbon negative architecture! For this strategy to be successful in reducing the greenhouse effect, however, the material storing the carbon must be kept intact for around 50 years at a minimum. This is established by the Moura Costa method, which demonstrates storing 1 tCO2e of biogenic carbon and delaying emissions for a period of at least 48 years has the same net benefit of avoiding 1 tCO2e regardless of end-of-life scenario. (See Brandão, Miguel & Levasseur, Annie. (2011). “Assessing Temporary Carbon Storage in Life Cycle Assessment and Carbon Footprinting: Outcomes of an expert workshop.”) Sustainability and design professionals working on single-family homes and low-rise multifamily buildings have an amazing opportunity with biogenics. Larger multifamily buildings are not able to use biogenics in the same way due to lack of fire testing (although they may contain the needed properties if used correctly), and thus we did not investigate them for Dekalb Commons. There are lots of great new products coming out using biogenics, and they are worth paying attention to. There is a lot of biogenic waste out there—hundreds of million tons are available in the United States alone that would otherwise just release their carbon! (https://carbonleadershipforum.org/exploring-potential-carbon-storing-materials/

Published: March 17, 2022
Categories: Embodied Carbon, Article